Schönberg (S-Birkach) | Hochwertig ausgestattete, lichtdurchflutete 5-Zimmer-Maisonette mit Einbauküche samt Kochinsel, Eichenparkett, Fußbodenheizung und gut nutzbarer Dachterrasse in bevorzugter Wohnlage +++
Wir freuen uns, Ihnen diese stilvolle, umfassend kernsanierte 5-Zimmer-Maisonette-Wohnung mit ca. 128,50 m² Wohnfläche in begehrter Lage von Stuttgart Birkach präsentieren zu dürfen. Zeitlose Gestaltung, hochwertige Materialien und eine durchdachte Architektur verbinden sich zu einem Wohnerlebnis auf gehobenem bis luxuriösem Niveau – mit großzügiger Dachterrasse, weitem Blick und exzellenter Anbindung.
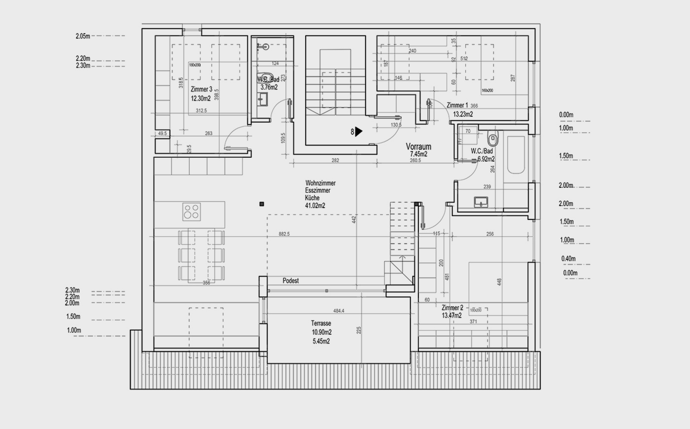
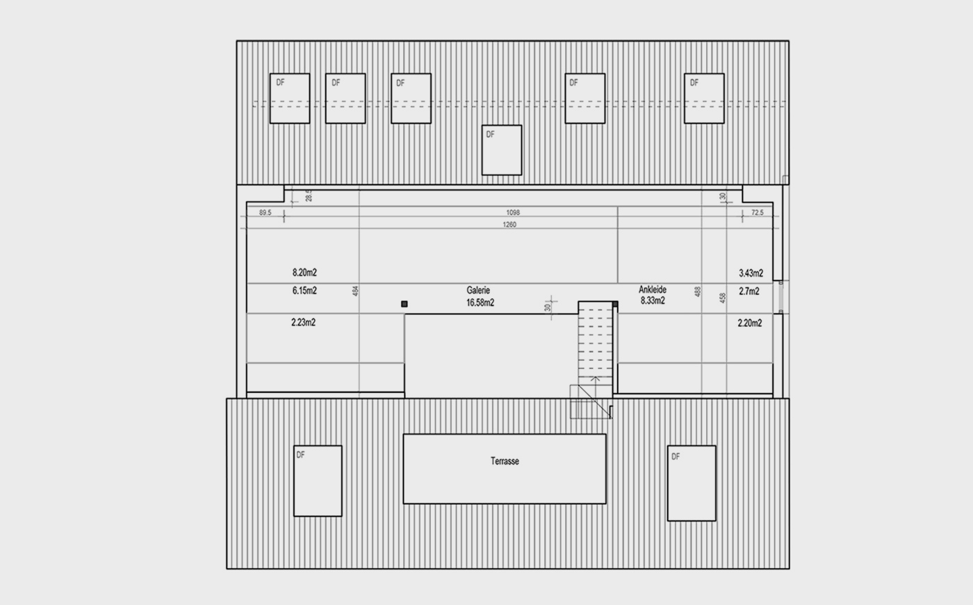
Die Maisonette erstreckt sich über zwei harmonisch aufeinander abgestimmte Ebenen (Dachgeschoss & 2. Dachegschoss) und beeindruckt mit einem hellen, offenen Wohn und Essbereich. Große Fensterflächen sorgen für eine angenehme Helligkeit und eröffnen den Blick ins Tal sowie zum gegenüberliegenden Wald am Schönberg. Die offene, stylische Einbauküche mit hochwertigen Miele Geräten fügt sich elegant in das Raumkonzept ein und schafft eine ideale Umgebung für genussvolles Kochen und geselliges Beisammensein. Landhausdielen in Eichenparkett mit abgefasten Kanten, edle Oberflächen und ein ruhiges, zeitloses Farb- und Materialkonzept unterstreichen den hochwertigen Charakter der Einheit.
Die private Ebene bietet drei gut proportionierte Schlafzimmer und zwei Tageslichtbäder: Ein Badezimmer ist mit Badewanne und Dusche ausgestattet, das zweite verfügt über eine großzügige Dusche. Insgesamt stehen somit zwei Duschen und eine Badewanne zur Verfügung – ideal für Paare, Singles mit Platzbedarf oder die kleine Familie. Ein besonderes Highlight bildet die großzügige, sonnige Dachterrasse, die den Wohnraum ins Freie erweitert und eine attraktive Freifläche für entspannte Stunden oder gesellige Abende bietet.
Die Wohnung wurde 2022–2024 umfassend und hochwertig kernsaniert. Die Kombination aus Strom- und Erdgas-Heizung gewährleistet zeitgemäßen Wohnkomfort; sämtliche Ausstattungsdetails sind sorgfältig gewählt und konsequent auf das übergreifende Design- und Qualitätskonzept abgestimmt. Einziehen und wohlfühlen – auf Anhieb.
Highlights
- Mehrfamilienhaus 2020–2024 umfassend kern- und energetisch saniert (Gebäudehülle, Technik, Energieeffizienz)
- Wohnfläche ca. 128,50 m² (DIN), ca. 168,00 m² Nfl., 5 Zimmer, davon 3 Schlafzimmer
- offener Wohn- und Essbereich mit großer Fensterfront und Weitblick
- hochwertige Einbauküche mit Miele Geräten
- Landhausdielen in Eichenparkett, abgefaste Kanten
- großzügige, sonnige Dachterrasse
- Kernsaniert 2022–2024
Diese kernsanierte Maisonette Wohnung vereint eine klare Architektur, hochwertige Materialien und ein stimmiges, zeitloses Design mit einer erstklassigen Lage in Stuttgart Birkach. Die großzügige Dachterrasse, die offene Wohnqualität und die komfortable Badsituation schaffen ein Wohnumfeld, das in Funktionalität, Komfort und Wertbeständigkeit gleichermaßen überzeugt – ideal für Paare, Singles mit Platzbedarf oder die kleine Familie. Einziehen und wohlfühlen.
Daten und Fakten
| Objekt ID: | SBB_Verkauf_Parasolstrasse_29_WE_12_DG |
| Kaufpreis: | 920.000,00 EUR |
| Kaufpreis Stellplatz/Carport: | 20.000,00 EUR |
| Zimmer: | 5 |
| Schlafzimmer: | 3 |
| Badezimmer: | 2 |
| Kellerräume: | 1 |
| Wohnfläche: | ca. 128,5 m² |
| Etage: | Dachgeschoss |
| Etagen: | 3 |
| Lage: | Schönberg (Stuttgart-Birkach) |
| Baujahr: | 2022 |
| Letzte Renovierung: | 2024/225 |
| Objektzustand: | Neuwertig |
| Ausstattungskategorie: | Gehoben |
| Verfügbar ab: | Vermietet, Bezug nach Vereinbarung möglich |
| Heizungsart: | Fußbodenheizung |
| Befeuerungsart: | Strom. Erdgas |
| Wert des Endenergiebedarfs: | 22 kWh/m²a |
| Art des Energieausweises: | Verbrauchsausweis |
| Energieeffizienzklasse: | A |
Gerne stehen wir Ihnen auch für weitere Informationen zu der Immobilie unter 0711 220097-0 und per E-Mail zur Verfügung.
Highlights Ausstattung
- Kernsanierung 2022-2024 mit gehobener, luxuriöser Ausstattung
- Wohnfläche ca. 128,50 m² (DIN), ca. 168,00 m² Nfl., 5 Zimmer, davon 3 Schlafzimmer
- offener Wohn- und Essbereich mit großer Fensterfront und Weitblick
- offener Wohn- und Essbereich mit großer Fensterfront und Weitblick
- hochwertige Einbauküche mit dunkler Arbeitsplatte und Kochinsel
- Marken-Einbaugeräte inklusive ergonomischem Backofen
- zwei Tageslichtbäder mit Badewanne und begehbarer Dusche
- Kellerraum vorhanden
- Ein Außenstellplatz kann optional erworben werden (Euro 20.000,-)





Energie Effizienz
| Baujahr lt. Energieausweis: | ca. 2022 |
| Letzte Renovierung: | 2025 |
| Heizungsart: | Fußbodenheizung |
| Wesentliche Energieträger: | Strom. Erdgas |
| Wert des Endenergiebedarfs: | 22 kWh/m²a |
| Art des Energieausweises: | Verbrauchsausweis |
| Energieeffizienzklasse: | A |
Maisonette-Wohnung | Stuttgart-Birkach
Die Adresse in einer ruhigen Wohnstraße des grünen Stadtteils Birkach überzeugt durch die ausgewogene Verbindung aus Rückzug und Nähe zum urbanen Leben. Die Stuttgarter Innenstadt ist ca. 5,2 km (Luftlinie) entfernt. Die Bushaltestelle „Schönberg“ ist fußläufig erreichbar (ca. 510 m); Flughafen und Messe liegen in kurzer Distanz (ca. 4,4 km). Alltagskomfort ist vor Ort gegeben – Apotheke, Bäckerei und Supermarkt befinden sich im Nahbereich (ca. 700–1.100 m). Familienfreundliche Strukturen mit Kitas und Schulen im Stadtteil sowie das gepflegte Wohnumfeld am Schönberg runden die Lage ab.
Sie sehen gerade einen Platzhalterinhalt von Google Maps. Um auf den eigentlichen Inhalt zuzugreifen, klicken Sie auf die Schaltfläche unten. Bitte beachten Sie, dass dabei Daten an Drittanbieter weitergegeben werden.
Mehr Informationen































