S-Neugereut | Außergewöhnliche, attraktive 4 bis 5-Zimmer-Maisonette auf drei Wohnebenen mit großer Dachterrasse, Balkon, Parkett, TG-Stellplatz in denkmalgeschütztem und prämierten Terrassenhaus »Schnitz« +++
Wir freuen uns, Ihnen diese außergewöhnliche 4 bis 5-Zimmer-Maisonette-Wohnung mit ca. 135,34 m² Wohnfläche auf drei stilvoll gestalteten Wohnebenen in dem renommierten, denkmalgeschützten Terrassenhaus »Schnitz« anbieten zu dürfen. Diese architektonisch herausragende Immobilie des Architekten Peter Faller, ausgezeichnet mit dem Hugo-Häring-Preis, verbindet zeitloses Design mit modernem Wohnkomfort und bietet ein einzigartiges Wohnerlebnis in bevorzugter Lage von Stuttgart-Neugereut.
Die Wohnung
Diese beeindruckende Maisonette-Wohnung erstreckt sich über drei durchdacht konzipierte Wohnebenen und besticht durch ihre funktionale Raumaufteilung sowie die maximale Besonnung aller Bereiche.
Die erste Wohnebene im 2. Obergeschoss empfängt Sie mit einem großzügigen, offenen Wohn- und Essbereich, der durch den schönen Parkettboden und einer eleganten Treppe zur weiteren Ebene geprägt ist. Die Einbauküche fügt sich harmonisch in den Wohnbereich ein und schafft gemeinsam mit dem angrenzenden Essplatz eine ideale Umgebung für geselliges Beisammensein. Ein weiterer Balkon erweitert den Wohnraum ins Freie und sorgt für zusätzlichen Wohlfühlkomfort.
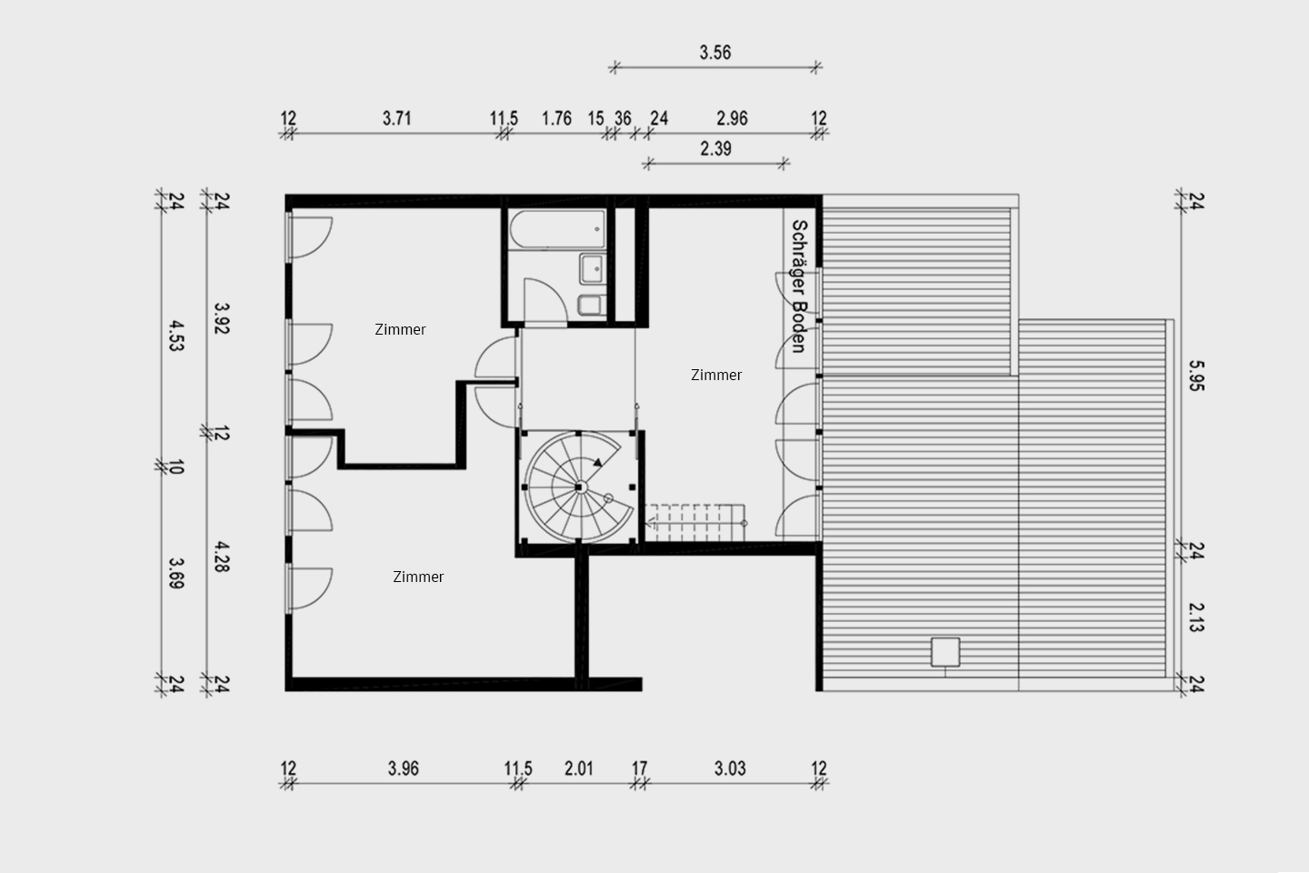
Die zweite Wohnebene im 3. Obergeschoss überzeugt mit einem offenen Dielenbereich, der flexibel als Arbeitszimmer oder zweiter Wohnbereich genutzt werden kann. Das großzügige Schlafzimmer mit hochwertigen Einbauten bietet Ruhe und Privatsphäre, kann bei Bedarf jedoch auch um ein weiteres Zimmer ergänzt werden – ideal etwa für ein Kinderzimmer oder Homeoffice. Alternativ lassen sich auf dieser Ebene auch zwei Kinderzimmer realisieren, was die Wohnung zu einem perfekten Zuhause für Familien macht.
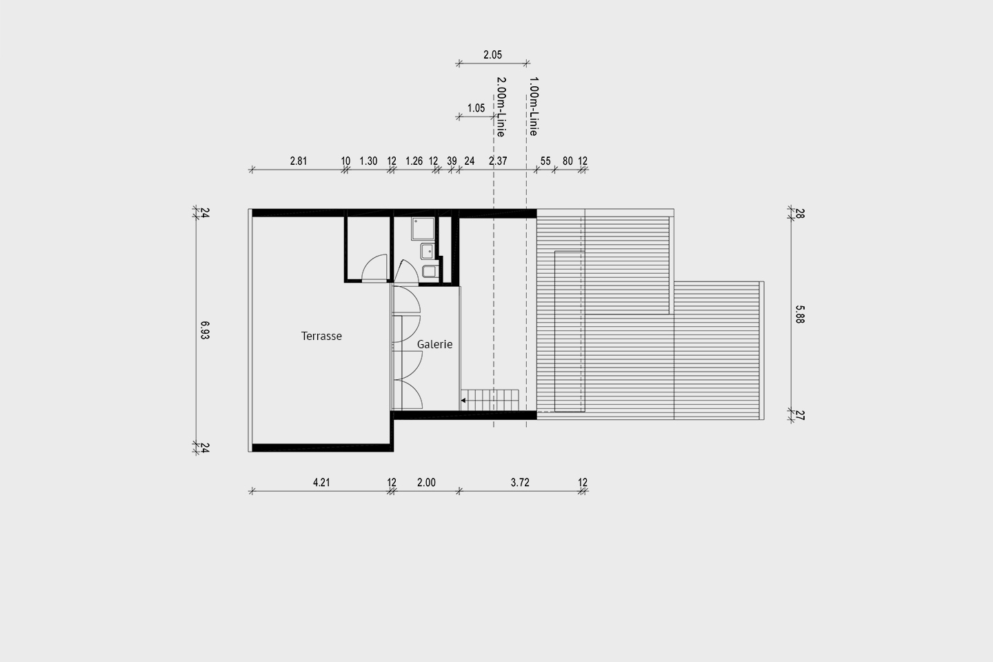
Über eine weitere Treppe gelangen Sie in das Dachgeschoss, wo eine lichtdurchflutete Galerie mit bodentiefer Fensterfront und der Zugang zur spektakulären Süd-West-Dachterrasse auf Sie warten. Durch die großzügige Verglasung entsteht ein besonders heller, offener Raumeindruck, der den wohnlichen Charakter dieser Ebene unterstreicht.
Das Gebäude – Terrassenhaus „Schnitz“
Ein architektonisches Unikat aus den 1970er-Jahren, das weit über Stuttgart hinaus Beachtung findet. Das Ensemble wurde 1973–1974 nach einem Entwurf von Peter Faller, Reinhold Layer, Knut Lohrer und Hermann Schröder errichtet und steht heute unter Denkmalschutz.
Das „Schnitz“ gilt als herausragendes Beispiel des innovativen Wohnungsbaus dieser Zeit – mit dem Ziel, hohen Wohnwert, Individualität und Gemeinschaft zu verbinden. Charakteristisch ist die terrassierte Bauweise, die jedem Bewohner großzügige Freiflächen bietet und gleichzeitig eine harmonische Einbettung in das Gelände ermöglicht.
Architektur & Besonderheiten
21 individuell geplante Wohneinheiten auf sechs Ebenen
Gebäudetyp: „Nur-Dach-Haus“
Wohnungsgrößen von ca. 38 m² bis 153 m²
Jede Einheit mit privatem Außenbereich (Terrasse oder Gartenanteil)
Tiefgarage und Gemeinschaftsflächen im Untergeschoss
Das Terrassenhaus „Schnitz“ steht exemplarisch für die progressive Architektur und den Wohnungsbau der 1970er-Jahre in Stuttgart – und bietet auch heute noch eine unverwechselbare Wohnqualität.
Aufteilung und Flächen
Wohnebene 1 im 2. Obergeschoss, Wohnfläche ca. 57,01 m²:
Großzügiger, offener Wohnbereich, Balkon, Küche und Badezimmer
Wohnebene 2 im 3. Obergeschoss, Wohnfläche ca. 54,96 m²:
Offener Dielen- bzw. Wohnbereich, Schlafzimmer und Badezimmer
Wohnebene 3 im Dachgeschoss, Wohnfläche ca. 23,37 m²:
‚Galerie, Badezimmer und Süd-West Dachterrasse
Gesamtfläche (DIN) mit ca. 135,34 m²
Daten und Fakten
| Objekt ID: | SBB_Verkauf_Ibisweg_19 |
| Kaufpreis: | Euro 499.000,00 EUR |
| Zimmer: | 5 |
| Kellerräume: | 1 |
| Wohnfläche: | ca. 135,34 m² |
| Etage: | 2. Obergeschoss |
| Etagen: | 3 |
| Provision für Käufer: | 3,57 % berechnet aus dem Kaufpreis inkl. 19 % MwSt. |
| Baujahr: | ca. 1973/74 |
| Verfügbar ab: | sofort bezugsfrei |
| Heizungsart: | Zentralheizung |
| Befeuerungsart: | Fernwärme |
| Wert des Endenergiebedarfs: | 135 kWh/m²a |
| Art des Energieausweises: | Verbrauchsausweis |
| Energieeffizienzklasse: | E |
Aber Bilder beschreiben viel mehr als Worte. Bitte beachten Sie weitere Impressionen im Objektvideo.
5-Zimmer-Maisonette-Wohnung mit ca. 135 qm Wohnfläche auf drei stilvoll gestalteten Wohnebenen in dem renommierten, denkmalgeschützten Terrassenhaus »Schnitz« anbieten zu dürfen.
Sie sehen gerade einen Platzhalterinhalt von YouTube. Um auf den eigentlichen Inhalt zuzugreifen, klicken Sie auf die Schaltfläche unten. Bitte beachten Sie, dass dabei Daten an Drittanbieter weitergegeben werden.
Mehr InformationenGerne stehen wir Ihnen auch für weitere Informationen zu der Immobilie unter 0711 220097-0 und per E-Mail zur Verfügung.
Maisonette-Wohnung | Stuttgart-Neugereut
- Maisonette-Wohnung auf drei stilvollen Wohnebenen
- ca. 135,34 m² qm Wohnfläche mit durchdacht funktionalem Grundriss
- große Süd-West Dachterrasse
- hochwertiger Parkettboden im Wohn- und Essbereich
- vollausgestattete Einbauküche
- drei Badezimmer
- Tiefgaragenstellplatz inklusive
- eigener Kellerraum und Fahrradkeller
- Gemeinschaftseinrichtungen: Sauna, Veranstaltungsräume
- denkmalgeschütztes Kulturdenkmal Terrassenhaus
- Zentralheizung (Fernwärme)



Energie Effizienz
| Baujahr lt. Energieausweis: | ca. 1973/74 |
| Heizungsart: | Zentralheizung |
| Wesentliche Energieträger: | Fernwärme |
| Wert des Endenergiebedarfs: | 135 kWh/m²a |
| Art des Energieausweises: | Verbrauchsausweis |
| Energieeffizienzklasse: | E |
Maisonette-Wohnung | Stuttgart-Neugereut
Das Mehrfamilienhaus befindet sich in Stuttgart-Neugereut, einem modernen Wohnquartier mit hervorragender Infrastruktur. Die Umgebung bietet eine ideale Mischung aus urbanem Komfort und grüner Wohnqualität. Kindergärten, Spielplätze, Grundschule und weiterführende Schulen sind ebenso vorhanden wie Läden, Ärzte, ein Servicehaus, Seniorenheim, ökumenisches Zentrum und eine Bibliothek.
Die Verkehrsanbindung ist durch die Stadtbahnlinien U2 und U19 optimal gewährleistet, wodurch das Stuttgarter Stadtzentrum bequem und schnell erreichbar ist. Das Wohnquartier zeichnet sich durch seine vielfältige Bebauung aus – eine harmonische Mischung aus Hochhäusern, Geschosswohnungsbau, Terrassenhäusern, Wohnhügeln sowie Reihen- und freistehenden Einfamilienhäusern schafft ein abwechslungsreiches und lebendiges Wohnumfeld.
Sie sehen gerade einen Platzhalterinhalt von Google Maps. Um auf den eigentlichen Inhalt zuzugreifen, klicken Sie auf die Schaltfläche unten. Bitte beachten Sie, dass dabei Daten an Drittanbieter weitergegeben werden.
Mehr Informationen













































